

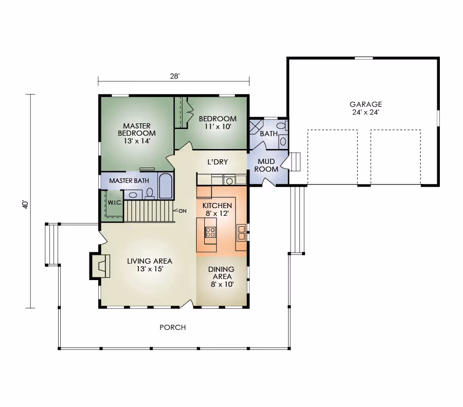
The extensive glass of the Yellowstone makes this the popular choice for a lake or mountain view. This home has an open concept-great-room tying into the dining area and kitchen keeping everyone together. The large master bedroom includes a walk in closet and master bath. A second bedroom makes it convenient when the grandchildren or guests come with an additional bath close by. Laundry and mudroom tie the house and the garage together. If you are searching for a home that has everything on one level and allows you to enjoy the sunset each evening, “Look no further.”

